Обшивка потолка панелями и гипсокартоном своими руками

Сейчас популярность конструкций подвесных потолков бесспорна. Такие потолки владеют многими хорошими чертами, что совершает их столь притягательными.
Но у пластика и гипсокартона все же имеется свои недостатки, каковые воздействуют на область их применения. Сама же обшивка потолка панелями из пластика либо страницами выполняется относительно просто. Потребуются навыки в работе с инструментом, познание делаемой работы, и один либо два напарника.
Выбирая между гипсокартонными листами и пластиковыми панелями, тяжело принять однозначное решение. Любой из этих материалов оптимален по-своему. Гипсокартон есть экологически чистым, разрешает делать разную финишную отделку и более прочный в отличие от пластика. Одновременно с этим пластиковые панели не подвержены действию жидкости, легкие и пара несложнее в монтаже. Пожалуй, наиболее ответственным критерием, определяющим выбор того либо иного материала, есть место его применения. Основываясь на сильных сторонах пластиковых панелей и страниц гипсокартона, возможно с легкостью определиться. Так ПВХ панели хороши для таких помещений, как кухня, ванная, санузел, лоджия либо балкон, где большой уровень влажности. А вот гипсокартон наиболее подходит для спален, детской, прихожей и коридора. Но, не обращая внимания на все различия, у ГКЛ и пластиковых панелей имеется одно общее: и те, и другие крепятся к обрешетке.
Обшивка потолка пластиковыми панелями

Создание потолка из пластиковых панелей проходит в пара этапов и включает в себя создание чертежа, расчет нужных материалов и монтаж конструкции. Обшивка потолка панелями своими руками может выполняться как в одиночку, так и с напарником, особенных сложностей в этом нет.
Чертеж конструкции потолка из пластиковых панелей
Как и каждые строительные работы, создание подвесного потолка из пластиковых панелей начинается с чертежа. Особенных сложностей в этом нет. Сам чертеж возможно сделать как от руки, так и в любой архитектурной программе.
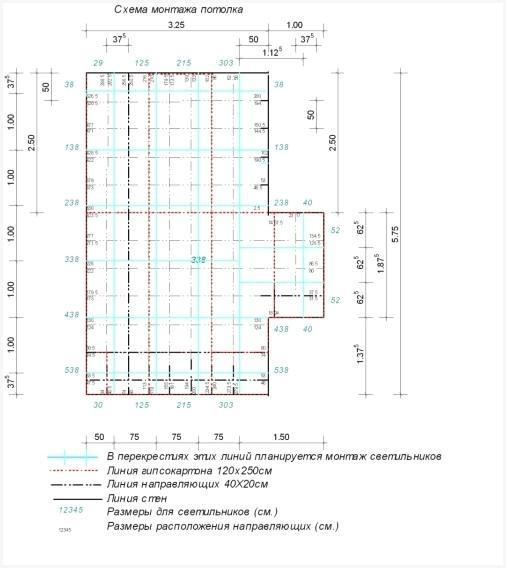
Для чертежа потребуется обмерять помещение и перенести его размеры на чертеж, замерять периметр и снять размеры длины и ширины помещения. Протяженность периметра будет соответствовать длине направляющих. Сами направляющие планки находятся на определенной высоте от потолка и будут крепиться к стенке. В большинстве случаев высота для направляющих образовывает от 5 до 20 см. Сейчас наносим на чертеж места размещения несущих планок, которых будет пара. Они расположены с шагом в 50 см, начиная от стенки. Их количество рассчитывается как ширина помещения, деленная на ход между планками. К примеру, 240/50=4,8 шт. В случае если, как в примере, число будет не целым, то округляем его в меньшую сторону. А отступ от стенки для первой и последней несущей планки рассчитываем так 240-(4х50)/2=20 см. Для дополнительной прочности каркаса нужно добавить поперечные планки. Они будут размешаться между основными несущими. Ход для них возможно покинуть 40 см, а возможно расширить до 50 см. Их количество рассчитывается аналогично, в этом случае берется за базу протяженность помещения. Следующее, что нужно отметить на чертеже, – точки монтажа подвесов либо места яркого крепления для несущих планок каркаса. Ход для крепления составит 60 см. Наряду с этим первая и последняя точки крепежа находятся на расстоянии в 30 см от стенки. Напоследок отмечаем места установки осветительных устройств, вентиляции и место прокладки коммуникаций. Так как потолок будет подвесным, то все коммуникации возможно запрятать конкретно в самой конструкции.
Расчет материалов
Сейчас, в то время, когда имеется все размеры и готовый чертеж, возможно приступать к расчету всех нужных материалов. Для несущего каркаса будут употребляться деревянные бруски 150х25 мм и 40х50 мм. Но стоит учесть, что для деревянных брусков нужно будет приобретать средства по защите от грибков и плесени. Для направляющих употребляется брусок 150х25 мм. Его протяженность равна периметру помещения.

Принципиально важно! Для деревянного каркаса размер несущих планок и направляющих берется из расчета высоты подвесного потолка, если не планируется создание свободного пространства между перекрытием и каркасом.
Для несущих планок каркаса употребляется брусок 150х25 мм. Расчет выполняется методом умножения нужного количества планок на длину помещения. К примеру, 300х4=1200 см неспециализированная протяженность несущих планок. В большинстве случаев размеры брусков стандартизированы, и возможно приобрести их по 4 м длиной и распустить. Подобным образом рассчитываем нужную длину брусков для поперечин. В нашем случае это 240х6=1440 см.

Что касается крепления, то тут все достаточно просто. Для крепления каркаса возможно применять подвесы. Их количество определяется так (300/60)х4=20 шт. Кроме этого возможно применять простые дюбеля и саморезы, каковые брусок к потолку. Ход для дюбелей тот же, что и для подвесов.
Осталось вычислить нужное количество пластиковых панелей. Для этого прежде всего вычисляем площадь помещения: 2,4х3=7,2 м2. Сейчас осталось закупить необходимое количество панелей. Их стандартная протяженность от 2,3 до трех метров, а ширина от 20 до 37 см, толщина 5 – 10 мм. Методом несложных подсчетов возможно вычислить количество панелей. Для этого площадь помещения делим на площадь одной панели и округляем в громадную сторону.

Принципиально важно! При закупке направляться добавить 15 – 20% к количеству всех материалов на случай отбраковки либо повреждения на протяжении монтажа. Кроме этого при покупке панелей направляться быть внимательными и выбрать качественные ПВХ панели из одной партии и в одном цвете и тональности. В зависимости от размеров панели и качества материала их цена возможно различной.
Монтаж потолка из пластиковых панелей
Обшивка потолка панелями ПВХ начинается с разметки. Первое, что нужно будет нанести, будет нулевой уровень всего потолка. Эта линия наносится на стены и представляет собой отметку высоты всего потолка не учитывая толщины панели. К примеру, запланированная высота потолка 15 см, толщина панели 7 мм. Соответственно, нулевая отметка будет 143 мм от перекрытия. Кроме этого эта линия будет меткой для направляющего каркаса. Для разметки с соблюдением правильного горизонта эргономичнее всего применять лазерный уровень.

Сейчас наносим разметку для несущих планок. При помощи рулетки отмеряем от стенку нужное расстояние и ставим по 2 – 3 отметки, каковые потом соединяем между собой в одну линию. Осталось нанести метки для подвесов. Сначала места их установки, а после этого, приложив подвес, намечаем места для крепления, наряду с этим следим, дабы подвес размещался строго перпендикулярно относительно основной линии для несущей планки.

Завершив разметку, приступаем к монтажу каркаса. Вначале обрабатываем дерево средствами от грибков и плесени. Позже засверливаем отверстия для крепления подвесов и устанавливаем их на место. Установив подвесы, загибаем их концы вниз наподобие буквы «П». Наряду с этим следим, дабы расстояние между концами равнялось ширине бруска для несущей планки.

Потом переходим к направляющему каркасу. Для его закрепления сначала прикладываем брусок к стенке так, дабы линия отметки проходила под ним. После этого, хорошо придерживая саму планку, засверливаем отверстия для крепежа. Эргономичнее всего сделать это по обоим концам планки, дабы сразу же закрепить её, а позже просверлить все остальные точки для крепления. Подобным образом закрепляем все планки направляющего профиля.
Сейчас приступаем к закреплению планок несущего профиля. Для этого сначала подгоняем их по длине, дабы они имели возможность вольно войти и подняться вовнутрь направляющего каркаса. После этого заводим планку вовнутрь подвесов. Пока напарник удерживает планку, нужно её зафиксировать с обоих концов. Для этого используем простые уголки, каковые закрепляем при помощи саморезов. Осталось только закрепить подвесы при помощи мелких саморезов по дереву.
Принципиально важно! При установке и фиксации несущих и направляющих брусков нужно при помощи уровня следить за их горизонтальным размещением, дабы избежать провисаний и перекосов. В случае если будет явный перекос, значит, была неправильно сделана разметка для направляющего каркаса.
Следующим шагом будет закрепление поперечных планок. Нарезав нужное количество, приступаем к разметке и монтажу. Для этого при помощи рулетки намечаем места установки планок. После этого закрепляем каждую планку. В качестве крепежа используем уголки и саморезы. Так как поперечины необходимы для жесткости каркаса, то возможно крепить лишь двумя уголками. По одному с противоположных сторон на концах бруска. Завершив монтаж каркаса, переходим к прокладке коммуникаций, вентиляции и другого. Лишь затем начинаем устанавливать панели ПВХ.
Установка панелей начинается с подгонки их по длине. В случае если ширина помещения больше, чем протяженность одной панели, тогда панели нужно будет совмещать. В случае если меньше, то срезать лишнее. Особенных неприятностей с этим не будет, поскольку ПВХ панели весьма легко режутся ножовкой с небольшими зубцами либо болгаркой с кругом для бетона. Основное наряду с этим не повредить саму панель. Рассмотрим вариант, в то время, когда нужно подгонять две панели.

Берем первую панель и прикладываем к каркасу так, дабы она хорошо прилегала к стенке и была перпендикулярно ориентирована относительно планок несущего каркаса. После этого при помощи мелких саморезов с широкой шляпкой, закрепляем панель к каркасу. Саморезы вкручиваем в выступающий шип панели. Сейчас подрезаем вторую панель, устанавливаем и закрепляем её как продолжение первой.

Шов, который останется на стыке, маскируется простым прозрачным силиконовым герметиком. Сейчас переходим ко второму ряду панелей. Они устанавливаются со смещением. Сперва идет маленькая панель, а позже к ней добавляется долгая. В следствии окажется размещение в шахматном порядке. Подобным образом устанавливаются все остальные пластиковые панели. По завершению монтажа в стык панели и стенки закрепляется пластиковый плинтус.

Принципиально важно! При установке панелей нужно заблаговременно прорезать в них отверстия под осветительные устройства, вытяжки и другое. Делается это перед тем, как устанавливать панель, где будет светильник либо проем для вентиляции.
Обшивка потолка гипсокартоном

Как и в случае с обшивкой потолка пластиковыми панелями, обустройство потолка из гипсокартона выполняется в пара этапов. По сути эти два потолка во многом схожи, но обшивка потолка гипсокартоном своими руками пара усложнена из-за веса страниц. И в случае если с пластиковыми панелями возможно было легко управиться в одиночку, то при работе с ГКЛ помощь напарника пригодится в любом случае.
Чертеж конструкции потолка из ГКЛ
Проект потолка из гипсокартона схож с проектом пластикового потолка. Тут кроме этого производится снятие размеров помещения и перенесение их на чертеж. Аналогичным образом указывается место размещения несущих, направляющих, перемычек, подвесов и другого. Отличие от чертежа для пластикового потолка содержится в расстоянии между планками несущего каркаса. В случае если для пластикового потолка эти значения были 40 – 50 см, то для потолка из гипсокартона ход несущих планок строго выяснен и образовывает 60 см, а ход для перемычек кратен 50 см. Такое ограничение обусловлено размерами страниц гипсокартона, каковые имеют стандартные размеры в 600 либо 1200 мм по ширине и длину 2,5 м либо 4 м. А с учетом большого веса страницы, дабы надежно его закрепить, края должны ложиться на профиль каркаса.
Обшивка потолка гипсокартоном – схема каркаса:

Расчет материалов
В случае если для каркаса потолка из пластиковых панелей мы применяли деревянные бруски, то для гипсокартонного потолка наилучшим вариантом будет применение железного профиля. Снова же это связано с весом страниц. Дерево просто не сможет обеспечить требуемый уровень надежности. Для каркаса потребуется два вида железного профиля CD 60/27 и UD 28/27. Профиль UD 28/27 употребляется для направляющего каркаса. Его протяженность равна периметру помещения. Профиль CD 60/27 употребляется для несущего каркаса и перемычек. Его протяженность рассчитывается, как сумма всех несущих планок и перемычек каркаса. Как это делается, мы разглядывали на примере расчетов для пластикового потолка. Количество подвесов для каркаса рассчитывается как ширина помещения, деленная на ход между несущими планками и умноженная на количество планок. Еще одним серьёзным элементом железного каркаса есть краб. Это соединитель для профиля. Расчет нужного количества достаточно несложен. Нужно посчитать количество точек пересечения планок несущего профиля с перемычками.

Напоследок производим расчет требуемых страниц гипсокартона. Неспециализированную площадь помещения делим на площадь одного страницы и округляем в громадную сторону. Но имеется один принципиальный момент. Во-первых, для обшивки потолка гипсокартоном направляться выбирать страницы размером 600х1500 мм либо 1200х2500 мм. Во-вторых, для потолков нужно выбирать страницы с мельчайшим весом, а это страницы толщиной 8 мм либо 9,5 мм. Еще одним серьёзным моментом есть возможность создания многоуровневого потолка из гипсокартона. Для обшивки потолка гипсокартоном устройство многоуровневого каркаса может «настойчиво попросить» повышения количества профиля и страниц. Кроме этого на обшивку потолка гипсокартоном цена будет зависеть прежде всего от площади помещения и производителя ГКЛ, и от самой конструкции потолка.
Монтаж потолка из ГКЛ

Обшивка потолка гипсокартоном начинается с нанесения разметки на потолок и стенки. Фактически, все работы мало чем отличаются от обрисованных для пластикового потолка. Сначала наносится разметка для несущего профиля не учитывая толщины ГКЛ. После этого на потолок наносится разметка для несущих планок и подвесов. Все размеры и отступы от стенку заблаговременно просчитаны и указаны в чертеже. Исходя из этого особенных сложностей с этим не будет.

Предстоящие работы будут заключаться в установке подвесов и профилей. Начинаем с подвесов. Они устанавливаются на отмеченные места, строго перпендикулярно линии для несущего профиля. Закрепляются дюбелями, а концы загибаются в форме буквы «П», наряду с этим нужно следить, дабы расстояние между концами соответствовало ширине профиля CD – 60 мм.
Потом переходим к установке направляющего профиля UD. Тут все достаточно просто. В стенке и в профиле засверливаются отверстия с шагом 50 см. Наряду с этим первое и последнее отверстие делаются с отступом от стенки в 10 см. После этого профиль устанавливается на место и закрепляется.
Принципиально важно! На протяжении монтажа каркаса нужно неизменно контролировать горизонтальность профилей. Перекос не допустим.

Следующим шагом будет установка несущего профиля CD. При необходимости профиль подрезается до нужной длины либо напротив сращивается при помощи особой вставки. После этого концы заводятся вовнутрь направляющего профиля и фиксируются там саморезами по металлу. Потом профиль закрепляется в подвесов при помощи все тех же саморезов по металлу.
Сейчас переходим к установке и фиксации перемычек, каковые придадут конструкции жесткости. Нарезаем профиль CD на куски нужной длины – 54 см. После этого, в обозначенных на чертеже местах заводим профиль между несущими планками и закрепляем его при помощи краба. Он просто одевается сверху, хорошо прижимается до защелкивания. Для надежности краб фиксируется саморезами. Повторяем эту процедуру для всего каркаса. На этом этапе работы кроме этого прокладывается проводка для освещения и другие коммуникации.

По завершению монтажа каркаса остается обшить его страницами гипсокартона. На этом этапе без одного, а то и двух напарников не обойтись. При подъеме лист может переломиться и к тому же некомфортно в один момент держать лист и вкручивать саморезы. В случае если помещение громадное, то обшив страницами производится в шахматном порядке. Это указывает, что сначала устанавливаем целый лист, а после этого к нему присоединяем маленький. Второй ряд страниц начинаем с монтажа маленького и заканчиваем целым. Сам лист крепится при помощи особых саморезов с шагом в 25 см. Шляпки направляться мало утопить, дабы по окончании финишной отделки они не выступали и не портили неспециализированный вид. По окончании обшивки страницами шпаклюются места крепежа, дабы частично выровнять поверхность, после этого грунтуется и наклеивается стеклохолст, по окончании чего еще раз шпаклюется. В завершение устанавливаются на место осветительные устройства, и наносится финишная отделка.
Создание подвесных потолков – один из наиболее трудоемких процессов. Но, не обращая внимания на это, такие потолки весьма популярны. Не считая гипсокартона и пластика, подвесной потолок возможно обшить и другими материалами, к примеру, вагонкой. Но тут уже все зависит от предпочтений хозяев. Конструкции подвесных потолков разрешают реализовать многие необыкновенные задумки дизайнеров и ограничиваются только их фантазией.






