Реечный потолок Албес — монтаж, особенности

Реечный потолок – это подвесная конструкция, владеющая привлекательным дизайном и отличающаяся легкостью монтажа. Таковой потолок возможно возводить в помещениях с самым различным назначением.
За счет отменной прочности, хорошей влагостойкости, богатому ассортименту цветов и фактур данное решение станет украшением любого интерьера. В последнее время все громадную популярность покупают реечные потолки от компании «Албес», выполненные из алюминиевого профиля наивысшего качества и имеющие разнообразное покрытие – от несложного белого до эксклюзивного зеркального. В статье рассмотрим преимущества реечного потолка албес и метод его монтажа.
Информация о производителе
«Албес» – это русский производственная группа, основная деятельность которой направлена на изготовление алюминиевых и стальных отделочных материалов. Предприятие было образовано в 1997 году и сейчас объединяет пара разноплановых компаний, несущих ответственность за выпуск продукции, ее продвижение и реализацию.
- Все изделия изготавливаются по технологии холодной прокатки листового металла, и способом штамповки из тонколистового алюминия и оцинкованной стали. Используются такие изделия в зданиях и сооружениях, предъявляющих повышенные требования к потолочным конструкциям.
Реечный потолок албес фото

- Купить продукцию промышленного объединения «Албес» возможно в торговых точках расположенных на территории РФ, в бывших советских республиках, а также в государствах Ближнего Зарубежья. Создаваемые товары – это высокотехнологические материалы, в которых объединен богатый опыт и интеллектуальные знания лучших инженеров компании. Как раз исходя из этого вот уже пара лет предприятие занимает лидирующие позиции на русском рынке по производству отделочных материалов, и по их качеству и широкому спектру ассортимента.
- Производимые товары прошли нужную сертификацию и рекомендованы к применению в медицинских, общеобразовательных, спортивных и многих других учреждениях. Помимо этого, продукция неоднократно занимала призовые места в разных общероссийских конкурсах, а сама организация была отмечена почетными дипломами и грамотами, как лучшее предприятие по выпуску стройматериалов в России.
Основные характеристики реечных потолков Албес
Реечные потолки – это узкие прямые параллельные панели, установленные на особом каркасе из направляющих. Такая конструкция способна решить множество функциональных задач и создать неповторимый дизайн помещения. Изготавливаются рейки «Албес», в большинстве случаев, из тонколистового алюминия и имеют полимерное покрытие, от которого зависит цветовое решение, помимо этого, выпускаются панели с расцветкой имитирующей разные фактуры.

Область применения
- Используются потолочные конструкции в жилых зданиях, в офисных зданиях и в публичных сооружениях, кроме этого они нашли широкое распространение на промышленных объектах, в медицинских и общеобразовательных учреждениях.
Размеры
- Стандартными считаются следующие размеры:
- Протяженность – 300-400 см, по личному заказу смогут изготавливаться алюминиевые рейки, протяженность которых достигает 6 м;
- Ширина – в зависимости от типа изделия варьируется от 25 мм до 20 см;
- Толщина – от 0,32 мм до 0,6 мм.
Конкурентные преимущества
- Прочная и долговечная конструкция с неограниченным сроком эксплуатации и фактически не нуждающаяся в замене;
- Уникальный дизайн и привлекательный внешний вид, благодаря громадному ассортименту цветовых решений и наличию множества разноплановых моделей;
- Стойкость к механическим повреждениям, к химическим веществам и антикоррозийная устойчивость;
- Владеют звукопоглощающими качествами, за счет установки особой подложки;
- Хорошая пожаробезопасность, поскольку рейки выполнены из негорючих материалов;
- Увеличивают естественное освещение, за счет светоотражающих свойств;
- Повышенная влагостойкость, благодаря которой реечные потолочные системы смогут употребляться кроме того в помещениях с высокой влажностью (в ванных, в бассейнах, саунах и без того потом). Кроме этого допускается их мыть и чистить любыми моющими средствами (без абразивных частиц в составе). Принципиально важно учитывать, что применяя оцинкованные потолки во мокрой среде, все имеющиеся детали направляться обработать антикоррозийными составами;

- Экологичность как самих потолочных реек, так и прилагающих к ним комплектующих;
- Гигиеничность, за счет того, что железные конструкции не подвержены гниению, образованию плесени, размножению бактерий и грибков, и не выделяют вредных веществ в вохдух;
- Быстрый и удобный монтаж, с которым под силу справится самостоятельно без привлечения дорогостоящего оборудования и высококвалифицированных экспертов;
- Имеется возможность вмонтирования осветительных и иных устройств конкретно в рейки;
- Допускается создание многоуровневых и криволинейных конструкций;
- Благодаря точно выверенным размерам профиля, обеспечивается надежность крепления и нужная жесткость конструкции, помимо этого, рейки не деформируются при любых нагрузках;
- Хорошая морозоустойчивость и износостойкость, реечные потолки смогут быть установлены на неотапливаемых лоджиях и балконах, помимо этого, они владеют хорошей цветостойкостью, другими словами не подвержены действию ультрафиолетового излучения;
- Универсальность применения, поскольку дизайн изделий превосходно вписывается в любой интерьер и гармонично дополняет его;

- Безопасность, благодаря очень узкому прокату алюминия, потолочные рейки Албес имеют небольшой удельный вес и возможно не тревожиться за здоровье окружающих, в случае если случится форс-мажорная обстановка, при которой панели смогут отсоединиться и упасть вниз. В принципе, технология крепления такая надёжная, что при любых простых условиях и качественном монтаже этого случиться просто не может;
- Довольно малая цена, за счет производства изделий на собственных фабриках, расположенных в России.
Варианты цветового выполнения
Подвесные реечные потолки «Албес» изготавливаются из алюминиевых либо оцинкованных страниц, каковые окрашиваются в заводских условиях на стадии производства, и дополнительно покрываются полимерным веществом. Лицевая сторона панелей возможно окрашена в достаточно широкую цветовую гамму. Среди наиболее распространенных оттенков возможно назвать такие цвета, как:
- Белый – матовый либо глянцевый варианты;
- Металлик – матовый и серебристый варианты;
- Хром, супер-хром и супер-хром люкс;
- Золото и супер-золото;
- Бежевый и светло-бежевый варианты.

Данные цвета относятся к стандартной окраске, кроме этого к популярным оттенкам относят такие цветовые решения, как тёмный, светло синий, светло-серый, бронзовый и малиновый и ружейный.
- Рейки смогут иметь поверхность, имитирующую разные природные материалы, к примеру, фактура дерева, жемчуга либо гранита, и и такие смешанные варианты окраски, как: белый жемчуг с железными полосами, золотая полоса на белом фоне, светло-бежевые либо бежево-золотые штрихи на белом фоне, бежево-зеленый либо зеленый штрих на ярком фоне и без того потом.
- По желанию клиента смогут быть изготовлены и рельефные панели, каковые будут владеть легкой волнистостью на поверхности или иметь узорчатую перфорацию, и изготавливается разновидность реек, выполненная из особой сетки, с квадратными, ромбовидными и круглыми ячейками.
- В случае если, думается, что воплотить в действительность дизайнерский план из предлагаемых стандартных вариантов не окажется, то возможно выбрать любой подходящий оттенок из более 200 цветов, имеющихся в цветовой коллекции RAL (германский цветовой стандарт, ставший общепризнанным). Любой выбранный цвет возможно использован в матовом либо металлизированном варианте, и давать легкий зеркальный эффект. Наносится выбранная краска способом порошкового окрашивания.
Принципиально важно! Не нужно подбирать оттенок по изображению на мониторе, поскольку из-за изюминок цветопередачи, окраска на экране может различаться от настоящего цвета, исходя из этого прежде, чем сделать выбор, нужно в обязательном порядке заметить готовый пример воочию.
- Обратная сторона панелей дополнительно покрыта защитным лаком либо прогрунтована особым составом.
- Благодаря большому выбору цветовых решений и дизайнерских фактур стало вероятным создавать разнообразные объемные интерьерные решения, избегая невыразительных плоских форм.
Разновидности реечных панелей «Албес»
Алюминиевые потолочные рейки отличаются по форме профиля. Компания «Албес» предлагает пара стандартных вариантов своих изделий.
Германский дизайн
- Как и все, что производится в Германии либо имеет характеристики «германское», данный вид изделий владеет строгой и лаконичной формой. Это прямоугольные рейки, ширина которых возможно 8,5 см, 13,5 см и 18,5 см.

- Монтировать таковой потолок допускается открытым либо закрытым методом. При открытом типе рейки устанавливаются через равные промежутки, в большинстве случаев, в 1,5 см. Образованные щели или оставляют в таком виде, или закрываться контрастными вставками – декоративными раскладками.
- Потолки закрытого типа монтируются близко, без промежутков. Цветовая окраска самих панелей возможно любой, кроме этого предлагаются варианты с перфорацией (1,5 мм в диаметре) либо дополнительной дизайнерской рельефностью.
Итальянский дизайн
- Данный вид изделия представляет собой рейки с кругленными краями, выполненные из алюминия, кроме этого одной из разновидностей считаются сетчатые панели, изготовленные из просечно-вытяжной железной сетки. Потолки итальянского дизайна монтируются в открытом и закрытом типе. В случае если выбор был сделан в пользу сетчатых реек, то потолок устанавливается лишь открытым методом с дополнительными декоративными расшивками либо без них.

- Стандартная ширина панелей образовывает 8,4 см, высота 1,6 см, такие показатели снабжают нужную жесткость и надежность устанавливаемой конструкции.
- Цветовая схема предлагается классическая, и выполненная по личному заказу клиента, помимо этого, на поверхность может наноситься перфорация (1,5 мм) или декоративный рельеф.
Дизайн «Омега» / «Omega»

- Реечный потолок в данном выполнении монтируется лишь закрытого типа, поскольку производимый алюминиевый профиль не имеет боковых углублений. Стандартными размерами считается ширина в 5 см, 10 см и 15 см. При сборе конструкции рекомендуется комбинировать разные по ширине рейки на одной несущей гребенке. Такое решение разрешает создавать эксклюзивный личный дизайн, кроме этого допускается совмещать потолочные панели и разных цветов.
- Не считая стандартных видов, под маркой «Албес» производятся реечные потолки уникальных форм, каковые оказывают помощь оформить потолочное пространство стильно и неповторимо.
Криволинейные рейки
Криволинейными именуют конструкции потолков, каковые имеют плавные переходы и изгибы. Значительно чаще такая система устанавливается в тех помещениях, где имеются неровности по высоте потолка, и при необходимости обогнуть какие-либо детали, инженерные коммуникации и т.д.

Помимо этого, таковой вид панелей разрешает создавать необычный дизайн. Гнутые рейки производятся на базе панелей «итальянского дизайна». Получаемая волна может иметь два направления:
- Поперек реек (в то время, когда используются особые гнутые гребенки и простые панели);
- Вдоль реек (рейки загибаются особым образом в заводских условиях).
Кубообразная рейка
- Такие панели употребляются в конструкциях открытого типа, как с дополнительными раскладками, так и без них. Алюминиевый профиль имеет прямоугольное сечение, а при монтаже поверхность потолочного пространства получает четко выраженный прямой рельеф.
- Высота таковой рейки возможно 25 мм либо 38 мм, а ширина 30 мм и 37,5 мм.

V-образная рейка
- Такие рейки кроме этого предназначены для открытых конструкций и смонтированный из них потолок имеет четко выраженный рельеф.
- Отличие от прошлого вида в форме панелей, каковые в сечение напоминают сердцевидный объект либо букву «V». Высота реек 40 мм, а ширина по выступающему краю 45 мм.
Пластинообразная рейка
Любая такая панель имеет плоское сечение. Устанавливаются они через равные промежутки в вертикальном положении. Пластины выпускаются высотой 90 мм, а шириной 16,5 мм.
Нужные комплектующие
- Рейка – производится из листового алюминия и есть главным элементом реечной потолочной системы. Возможно двух типов: открытого (комплектуется раскладкой) и закрытого (монтируется близко друг к другу). При необходимости стыкуется по длине при помощи особых соединительных элементов;
- Раскладка – алюминиевые вставки, шириной 16 мм, предназначены для открытой конструкции потолка, вставляются в промежутки между рейками открытого типа;
- Гребенка (стрингер) – элемент относится к основным частям конструкции, как раз в данный профиль вставляются панели. Представляет собой направляющие из тонколистовой оцинкованной стали (толщина не более 0,5 мм). Была названа за счет «язычков», каковые нужны для крепления панелей методом защелкивания;
- Периметральный профиль – это угловой профиль, который закрепляется по периметру и рекомендован для перекрытия стыка между рейкой и стеной, он придает конструкции законченный вид и возможно нескольких разных конфигураций, стандартным считается уголок с размерами сторон 19х24 мм;

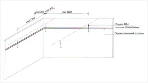
- Подвес – представляет собой две узкие спицы, одна из которых имеет кольцо с отверстиями для дюбелей, благодаря которым элемент закрепляется в плите перекрытия, другая спица имеет на конце крюк, для удержания гребенки. Между собой спицы закреплены пружиной, которая помогает для регулировки высоты. Элемент может закреплять реечный потолок на расстоянии от несущей конструкции от 12 см до четырех метров;
- Метизы – это саморезы и дюбеля, на каковые происходит крепление всей конструкции.
Эксперты советуют использовать в реечной потолочной системе точечные встраиваемые светильники, каковые завершат композицию и создадут в помещении нужный комфорт и уют.
Монтаж реечного потолка албес
Реечный потолок предполагает монтаж на намерено установленный каркас. Потолки «Албес» возможно крепить в закрытом и открытом варианте, для этого производится две разновидности панелей. Для открытого типа установки в наборе поставляется особая раскладка, которая отличается меньшей шириной, чем рейка и возможно или в едином цветовом решении с панелями, или контрастировать с ними по цвету.
Первое что нужно сделать, перед тем как приступить к яркому монтажу – это закупить материал в достаточном количестве, а для этого направляться в обязательном порядке провести предварительные расчеты.
Расчет количества материала
- Для начала замеряется периметр декорируемого пространства. Данный параметр нужен для установки требуемой длины углового профиля, который фиксируется на стенах под потолком. Взять нужную цифру возможно измерив длину и ширину помещения и умножить оказавшийся итог на два (в случае если комната имеет прямоугольную либо квадратную форму, в случае если же имеются выступы и сложный дизайн, то любой участок стенки просчитывается раздельно). Стоит учесть, что уголок продается 3 м длины, а, значит, взятую цифру нужно поделить на 3 и так станет ясно, какое количество профиля брать на ту либо иную комнату.

- Следующее, что необходимо сделать – это вычислить длину гребенок и их количество. Стоит учесть, что направляющая обязана размешаться от стенки не потом чем на 30-40 см, а между стрингерами расстояние не должно быть больше 120-150 см (лучше сделать меньшее расстояние, тогда конструкция будет более твёрдой).
- Гребенки поставляются в продажу стандартных размеров в 3,8 м. Кроме этого не следует забывать, что направляющие устанавливаются перпендикулярно положению реек, другими словами в случае если планируется вертикальное размещение панелей, то направляющие закрепляются горизонтально и напротив. Рассчитываем нужную длину в метрах, исходя из размеров помещения, а после этого полученная цифра делится на 3,8. Так, возможно определить какое количество гребенок брать. При расчете направляться учесть и количество соединителей для направляющих.
- Самый важный момент – это расчет требуемого количества реек. Тут все будет зависеть от выбранной ширины панели, и от метода монтажа (закрытый либо открытый). Для примера возможно взять наиболее распространенный размер в 8,4 см, устанавливаемый со вставкой в 1,6 см, другими словами неспециализированная ширина будет равна 10 см.
- Выбор длины потолочных панелей будет зависеть от размера отделываемого пространства, так в случае если ширина комнаты 3 м, а протяженность 5 м, то возможно купить рейки длиной в 3 м и монтировать их по ширине пространства. Другими словами на помещение с размерами 3х5 м нужно приобрести 50 реек и 49 вставок (5000/100). Вставок постоянно требуется на одну меньше, поскольку устанавливать их на края не рекомендуется.
- Таковой расчет верен при правильном совпадении одной из сторон комнаты и длины рейки, в случае если комната не подходит под стандартные размеры панелей, то окажется через чур много отходов, К примеру, в помещение 2,5х1,9 м (ванная либо лоджия) не рационально покупать изделия 3м длины, оптимальнее приобрести 4 м рейки и укладывать их по меньшей стороне, разрезая пополам.
- При необходимости соединять панели в длину, берут особые соединительные элементы. Принципиально важно, в случае если имеется возможности избежать таковой стыковки, то лучше так и поступить, поскольку ровные прямые рейки без лишних соединений смотрятся значительно привлекательней.
- Последнее, что нужно вычислить – это количество подвесов. Для реечных потолков достаточно установки подвесов на расстоянии 30 -40 см от стенку и 120-150 см друг от друга. Помимо этого, возможно определить и нужное количество дюбелей, поскольку на любой подвес требуется по 2 дюбель-гвоздя.

В то время, когда произведены все расчеты и закуплены материалы в требуемом количестве, возможно переходить конкретно к монтажу.
Этапы работ
Инструменты и материалы:
- Набор реечного потолка «Албес» (панели, направляющие, уголок и подвесы);
- Дрель, перфоратор, шуруповерт;
- Карандаш либо маркер;
- Линейка, рулетка и строительный уровень;
- Плоскогубцы, нож и ножницы по металлу;
- Дюбель-гвозди.
- Так как реечный алюминиевый потолок Албес – это подвесная конструкция, то основная потолочная плита не требует какой-либо особой обработки. В случае если таковой вид конструкции устанавливается во мокром помещении, то возможно обработать поверхность под ней особыми грунтовками, в составе которых имеются антибактерицидные вещества, наряду с этим направляться заделать все имеющиеся на поверхности недостатки и швы.
- Принципиально важно закрепить коммуникации, каковые будут размешаться под реечным потолком, дабы не допустить их случайное падение на панели и повреждение установленной потолочной конструкции.

- Для начала на стены наносится разметка под установку углового профиля. В случае если крепление предполагает сверление кафельной плитки, то разметку нужно делать так, дабы не попасть в швы, в противном случае плитка может треснуть либо расколоться. Линия разметки обязана находиться по всему периметру в одной плоскости, для этого возможно воспользоваться строительным уровнем либо лазерным нивелиром.

- В случае если между плитой перекрытия и подвесным потолком планируется размещать какие-то дополнительные элементы, то это направляться учитывать на этапе разметки и заблаговременно закладывать это в отступ от верхнего края стенки, в случае если же пространство остается пустым, то минимальная величина зазора предположительно составит 5 см.
- При помощи перфоратора делаются отверстия в П-образном профиле, отойдя от края по 5 см, на расстоянии друг от друга в 50 см. После этого, приложив уголок к стенке, через данные отверстия просверливается и сама стенки. Уголок закрепляется при помощи дюбель-гвоздей. Затем возможно перейти к разметке под направляющие и подвесы.
- Подвесы устанавливаются на расстоянии 30-40 см от стенку с промежутков в 1,2-1,5 м, при помощи 2 дюбелей. В то время, когда все подвесы надежно закреплены, возможно монтировать каркас из стрингеров, в котором будут размешаться потолочные рейки. Гребенки подвешиваются на имеющиеся в подвесах крючки и надежно ими удерживаются.

- Любая панель имеет такую форму, что она легко вставляется в пазы направляющей шины и как бы защелкивается там (до характерного щелчка). В случае если последняя рейка не помещается всецело, то ее направляться подрезать и сперва вставлять отрезанной стороной в угловой профиль и лишь затем защелкивать на гребенке.

- На последней стадии потолок выравнивается в одной плоскости при помощи подтягивания либо ослабления до нужной высоты подвесов.
Рекомендации и советы
- Планируя установку панелей, направляться опираться на направление света от окна, так линии стыков должны размешаться по направлению от окна к противоположной стенке.
- В случае если комната узкая, то визуально увеличить ее окажет помощь поперечное размещение реек.
- Квадратная комната поменяет пропорции при диагональной установке панелей.
- Для стремительного исполнения разреза под врезаемые элементы (светильники, коммуникации, декор), возможно воспользоваться дрелью с насадкой-коронкой нужного диаметра.
Цены и ассортимент реечных потолков Албес
Тип и размеры Цветовое выполнение Цена за штуку Протяженность 3 м Протяженность 4 м Итальянский дизайн (маркировка А), ширина 84 мм белый матовый от 180 руб. От 235 руб. Супер-хром от 290 руб. От 385 руб. Золото от 350 руб. От 460 руб. Супер-золото от 480 руб. От 640 руб. Германский дизайн
(маркировка AN) ширина 85 мм
белый глянцевый от 185 руб. От 245 руб. Белый матовый от 160 руб. От 215 руб. Белый матовый перфорированный от 255 руб. От 340 руб. Супер-хром от 290 руб. От 385 руб. Хром от 230 руб. От 300 руб. Хром перфорированный от 430 руб. От 575 руб. Супер-золото от 480 руб. От 640 руб. Золото от 335 руб. От 450 руб. Металлик от 180 руб. От 240 руб. Металлик перфорированный от 270 руб. От 365 руб. Германский дизайн
(маркировка AN) ширина 135 мм
Белый глянцевый от 330 руб. От 435 руб. Белый матовый от 250 руб. От 330 руб. Белый матовый перфорированный от 375 руб. От 500 руб. Супер-хром от 425 руб. От 570 руб. Супер-золото от 690 руб. От 925 руб. Металлик от 280 руб. От 375 руб. Дизайн «омега»
(маркировка AТ) ширина 100 мм
Белый матовый от 220 руб. От 290 руб. Супер-хром от 430 руб. От 575 руб. Металлик от 300 руб. От 405 руб. Дизайн «омега»
(маркировка AТ) ширина 150 мм
белый матовый от 290 руб. От 390 руб. Белый матовый перфорированный от 320 руб. От 425 руб.
Компания «Албес» формирует реечные потолочные системы, каковые складываются из прочных и долговечных железных панелей, они не опасаются резких смен температуры, устойчивы к механическому действию, легко монтируются и эргономичны в эксплуатации.
Реечные потолки отличаются многообразием форм и покрытий, благодаря которым возможно создавать всевозможные дизайнерские проекты, каковые смогут быть реализованы как в публичных зданиях, так и в жилых помещениях. И неизменно возможно быть уверенным, что такая конструкция будет радовать своих обладателей много лет, оставаясь в неизменном виде.






